2241 Ocean Westway Saint John, New Brunswick E2M 5H8
$399,900
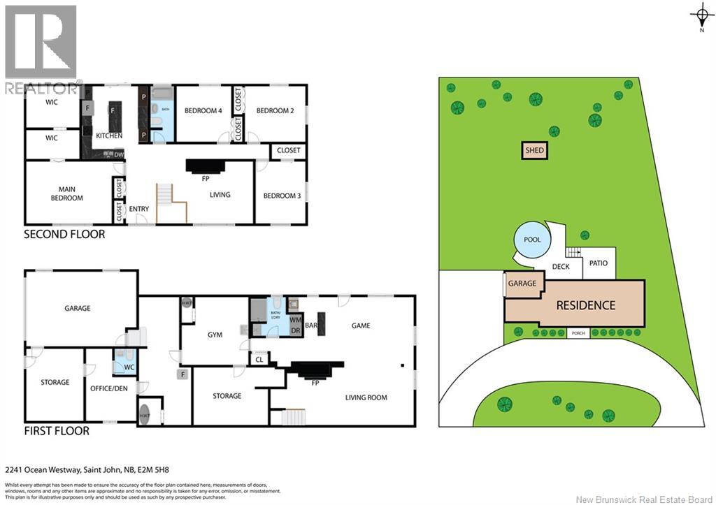
Welcome to this spacious 1,800 sq. ft. bungalow featuring four bedrooms on the main level and super quick highway access, just a few short minutes to the West Side or 10 mins to Saint John city centre. Offering an ideal blend of convenience, space, and outdoor lifestyle, this home is perfect for those who value storage, privacy and flexibility. The oversized primary bedroom includes a large walk-in closet, while the 3 additional bedrooms offer large windows and generous closet space. A custom kitchen provides abundant cabinetry, and recent updates, including a newer roof, windows, 2 heat pumps, exterior doors, and deck boards, offer added peace of mind. The large, bright walk-out basement features a wet bar, 1.5 baths, laundry, exceptional storage and access to a concrete patio and gazebo. With multiple access points and room for additional bedrooms, this home offers excellent potential for an in-law suite. Outside, enjoy a paved driveway, 1.5 attached garage, large sundeck, and an above-ground pool for summer fun. Direct access to recreational trails and the NB Trail allows you to walk your dogs or ride your ATV straight to Spruce Lake, a rare and valuable outdoor bonus. Dont miss this opportunity! Schedule your private showing today and experience everything this exceptional property has to offer. (id:41243)
Property Details
| MLS® Number | NB130182 |
| Property Type | Single Family |
| Equipment Type | Other, Propane Tank |
| Features | Balcony/deck/patio |
| Pool Type | Above Ground Pool |
| Rental Equipment Type | Other, Propane Tank |
| Structure | Shed |
Building
| Bathroom Total | 3 |
| Bedrooms Above Ground | 4 |
| Bedrooms Total | 4 |
| Architectural Style | Bungalow, Ranch |
| Constructed Date | 1970 |
| Cooling Type | Heat Pump |
| Exterior Finish | Vinyl |
| Fireplace Fuel | Gas |
| Fireplace Present | Yes |
| Fireplace Type | Unknown |
| Flooring Type | Laminate, Hardwood |
| Foundation Type | Concrete |
| Half Bath Total | 1 |
| Heating Fuel | Electric, Oil, Propane, Natural Gas |
| Heating Type | Baseboard Heaters, Forced Air, Heat Pump, See Remarks, Stove |
| Stories Total | 1 |
| Size Interior | 3,300 Ft2 |
| Total Finished Area | 3300 Sqft |
| Utility Water | Municipal Water |
Parking
| Attached Garage | |
| Garage |
Land
| Access Type | Year-round Access, Public Road |
| Acreage | No |
| Size Irregular | 0.5 |
| Size Total | 0.5 Ac |
| Size Total Text | 0.5 Ac |
Rooms
| Level | Type | Length | Width | Dimensions |
|---|---|---|---|---|
| Main Level | Bedroom | 13'5'' x 10'10'' | ||
| Main Level | Bedroom | 11'10'' x 12'10'' | ||
| Main Level | Bedroom | 11'6'' x 11'10'' | ||
| Main Level | Primary Bedroom | 17'10'' x 13'4'' | ||
| Main Level | Living Room/dining Room | 11'2'' x 14'2'' | ||
| Main Level | Kitchen | 13' x 14'2'' |
https://www.realtor.ca/real-estate/29191264/2241-ocean-westway-saint-john
Contact Us
Contact us for more information

































































































