4 Thomas Creek Lane Oak Bay, New Brunswick E3L 4B2
$549,900
Welcome to 4 Thomas Creek Lane, a stunning new build in a peaceful country subdivision, offering the perfect blend of modern design and everyday comfort. This 3-bedroom, 1.5-bath home features a sleek dark exterior that makes a bold first impression and complements its natural surroundings. The main floor offers a bright, open-concept kitchen and living area ideal for entertaining, a convenient mudroom, main floor laundry, and a powder room for guests. The energy-efficient heat pump ensures comfort throughout the seasons. Upstairs, youll find three spacious bedrooms and a stylish full bathroom with a stand-up shower and relaxing soaker tub. Both the primary and second bedrooms have private access to an upper balcony - the perfect spot for your morning coffee or to enjoy the fresh country air. Step outside to a sunny back deck, ideal for BBQs, gatherings, or simply relaxing. Thoughtfully designed and beautifully finished, this new build offers the opportunity to personalize your final touches and make it truly your own. (id:41243)
Property Details
| MLS® Number | NB128834 |
| Property Type | Single Family |
| Features | Balcony/deck/patio |
Building
| Bathroom Total | 2 |
| Bedrooms Above Ground | 3 |
| Bedrooms Total | 3 |
| Architectural Style | Contemporary, 2 Level |
| Constructed Date | 2025 |
| Cooling Type | Heat Pump |
| Exterior Finish | Metal, Stone, Vinyl |
| Flooring Type | Vinyl |
| Foundation Type | Slab |
| Half Bath Total | 1 |
| Heating Fuel | Electric |
| Heating Type | Baseboard Heaters, Heat Pump |
| Size Interior | 1,719 Sqft |
| Total Finished Area | 1719 Sqft |
| Type | House |
| Utility Water | Well |
Land
| Access Type | Year-round Access, Private Road |
| Acreage | Yes |
| Sewer | Septic System |
| Size Irregular | 1.12 |
| Size Total | 1.12 Ac |
| Size Total Text | 1.12 Ac |
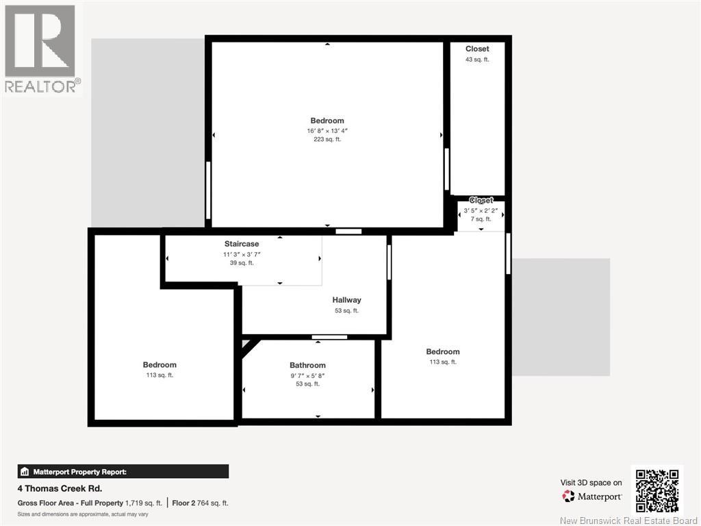
Rooms
| Level | Type | Length | Width | Dimensions |
|---|---|---|---|---|
| Second Level | Bedroom | 10'0'' x 13'0'' | ||
| Second Level | Bath (# Pieces 1-6) | 9'7'' x 5'6'' | ||
| Second Level | Bedroom | 8'3'' x 13'9'' | ||
| Second Level | Primary Bedroom | 16'8'' x 13'4'' | ||
| Main Level | 2pc Bathroom | 4'9'' x 6'7'' | ||
| Main Level | Laundry Room | 9'3'' x 4'11'' | ||
| Main Level | Living Room | 14'6'' x 13'7'' | ||
| Main Level | Other | 5'5'' x 4'9'' | ||
| Main Level | Dining Room | 14'6'' x 13'3'' | ||
| Main Level | Kitchen | 14'5'' x 13'2'' | ||
| Main Level | Mud Room | 6'6'' x 8'0'' |
https://www.realtor.ca/real-estate/29020966/4-thomas-creek-lane-oak-bay
Contact Us
Contact us for more information















































































