638-640 Manawagonish Road Saint John, New Brunswick E2M 3W5
$4,990,000
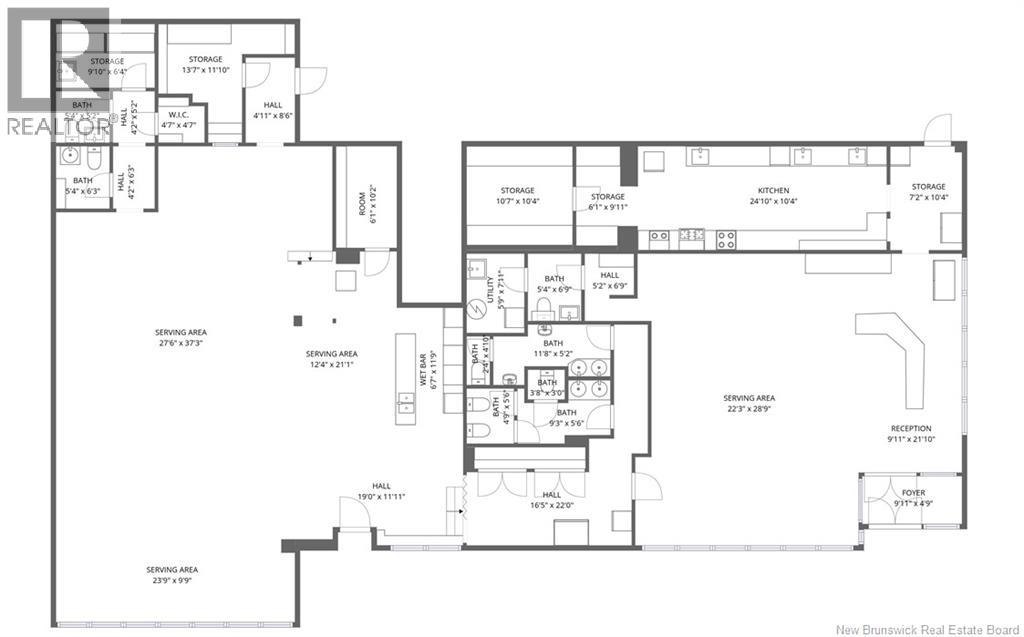
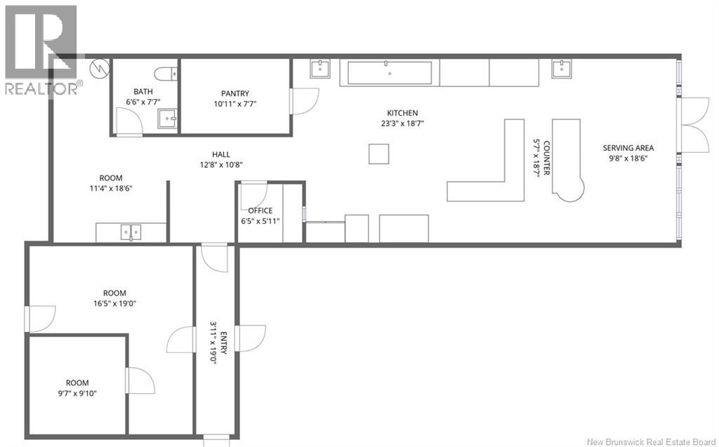
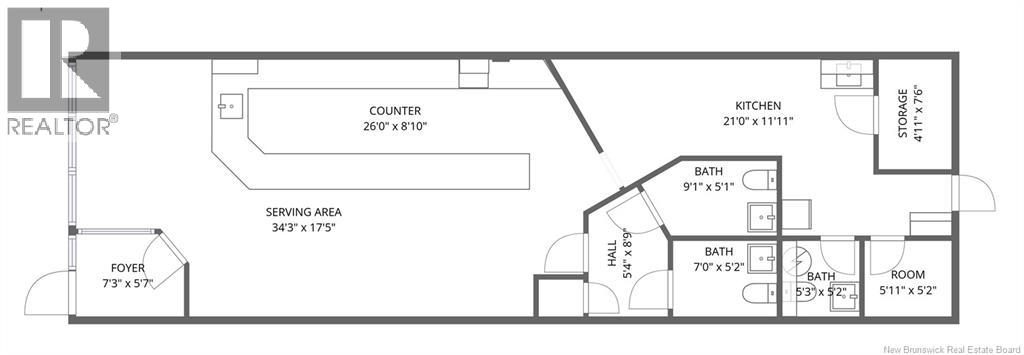
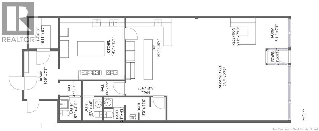
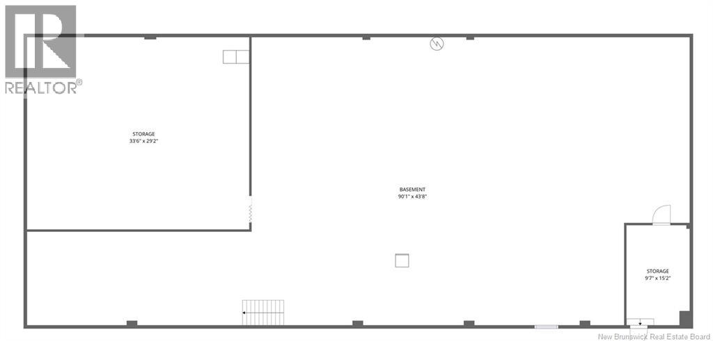
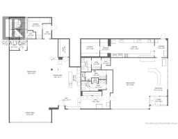
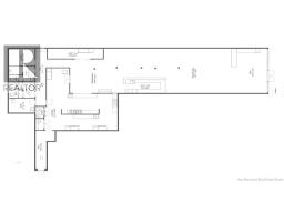
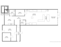
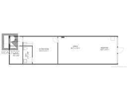
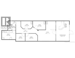
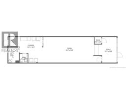
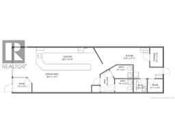
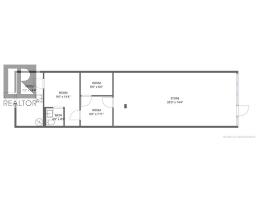
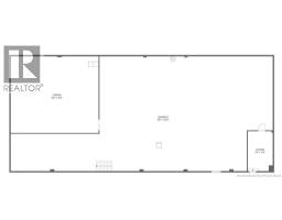
Exceptional opportunity to acquire a well-established, fully leased commercial plaza totaling just over 27,000 square feet. The property is home to 15 successful businesses, some of which have been operating at this location for over 30 years, reflecting long-term tenant stability and consistent performance. Ideally situated at a busy, high-visibility intersection on the rapidly growing west side, this plaza benefits from strong traffic counts, excellent exposure, and continued development in the surrounding area. Set on a generous 2.3-acre lot, the property offers ample on-site parking with 140+ spaces and three points of access from two major roads, allowing for smooth flow and easy access for patrons and tenants. The building also features approximately 4800 square feet of undeveloped basement space, offering additional income potential with exterior access. (id:41243)
Property Details
| MLS® Number | NB131528 |
| Property Type | Other |
| Amenities Near By | Public Transit |
| Equipment Type | None |
| Features | Level Lot, Corner Site, Visual Exposure |
| Rental Equipment Type | None |
| Structure | None |
Building
| Constructed Date | 1973 |
| Cooling Type | Heat Pump |
| Exterior Finish | Brick, Metal |
| Fire Protection | Smoke Detectors, Sprinkler System-fire, Security System |
| Heating Fuel | Electric, Natural Gas |
| Heating Type | Heat Pump |
| Size Interior | 27,646 Sqft |
| Total Finished Area | 27646 Sqft |
Land
| Access Type | Year-round Access, Public Road |
| Acreage | Yes |
| Land Amenities | Public Transit |
| Size Irregular | 9242 |
| Size Total | 9242 M2 |
| Size Total Text | 9242 M2 |
| Zoning Description | General Commercial |
https://www.realtor.ca/real-estate/29213937/638-640-manawagonish-road-saint-john
Contact Us
Contact us for more information





























































































