85 Main Street St George, New Brunswick E5C 3J4
$359,900
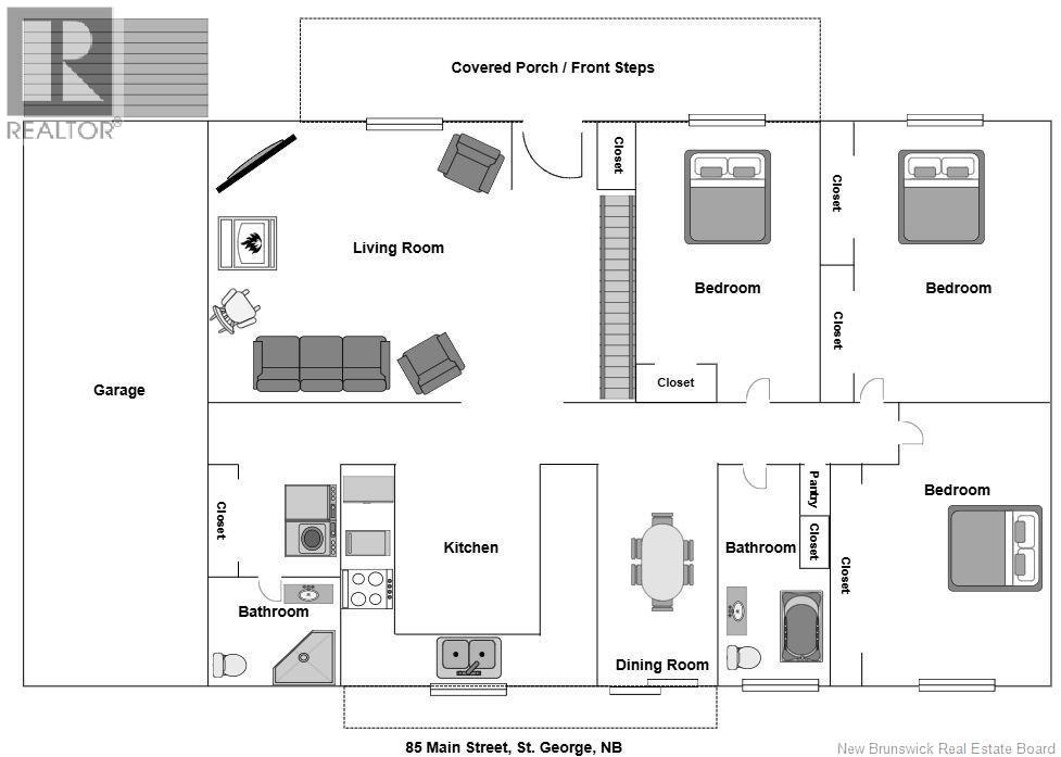
Welcome to this exceptional KENT bungalow, where pride of ownership is evident at every turn. Perfectly positioned on Main Street in St. George, this meticulously maintained one-story home offers refined comfort and effortless living. Step inside to a thoughtfully designed layout featuring 3 spacious bedrooms, 2 bathrooms, and an inviting living space filled with natural light. The kitchen and dining area flow seamlessly, creating an ideal setting for both quiet mornings and entertaining guests. Outdoors, unwind on the charming front porch or take in the beautifully manicured grounds, complete with lush greenery, shrubs, and elegant flower boxes. A detached garage offers additional storage, while the attached garage adds everyday convenience. Immaculate and move-in ready, this home presents like newan exceptional offering in a desirable location. (id:41243)
Property Details
| MLS® Number | NB135495 |
| Property Type | Single Family |
Building
| Bathroom Total | 2 |
| Bedrooms Above Ground | 3 |
| Bedrooms Total | 3 |
| Architectural Style | Bungalow |
| Basement Type | Full |
| Constructed Date | 2000 |
| Exterior Finish | Vinyl |
| Flooring Type | Carpeted |
| Foundation Type | Concrete |
| Heating Type | Baseboard Heaters |
| Stories Total | 1 |
| Size Interior | 1,344 Sqft |
| Total Finished Area | 1344 Sqft |
| Type | House |
| Utility Water | Municipal Water |
Parking
| Attached Garage |
Land
| Acreage | No |
| Sewer | Municipal Sewage System |
| Size Irregular | 1254 |
| Size Total | 1254 M2 |
| Size Total Text | 1254 M2 |
Rooms
| Level | Type | Length | Width | Dimensions |
|---|---|---|---|---|
| Main Level | Primary Bedroom | 13'2'' x 14'1'' | ||
| Main Level | Bedroom | 10'8'' x 13'2'' | ||
| Main Level | Bedroom | 13'3'' x 8'11'' | ||
| Main Level | 3pc Bathroom | 9'10'' x 8'5'' | ||
| Main Level | Living Room | 13'4'' x 19'10'' | ||
| Main Level | Dining Room | 13'3'' x 9'1'' | ||
| Main Level | Kitchen | 13'3'' x 9'1'' | ||
| Main Level | 3pc Bathroom | 8'6'' x 2'7'' | ||
| Main Level | Mud Room | 8'6'' x 10'3'' |
https://www.realtor.ca/real-estate/29496244/85-main-street-st-george
Contact Us
Contact us for more information



































































































